Page suivante
Page précédente
Saint-Claude (97120)

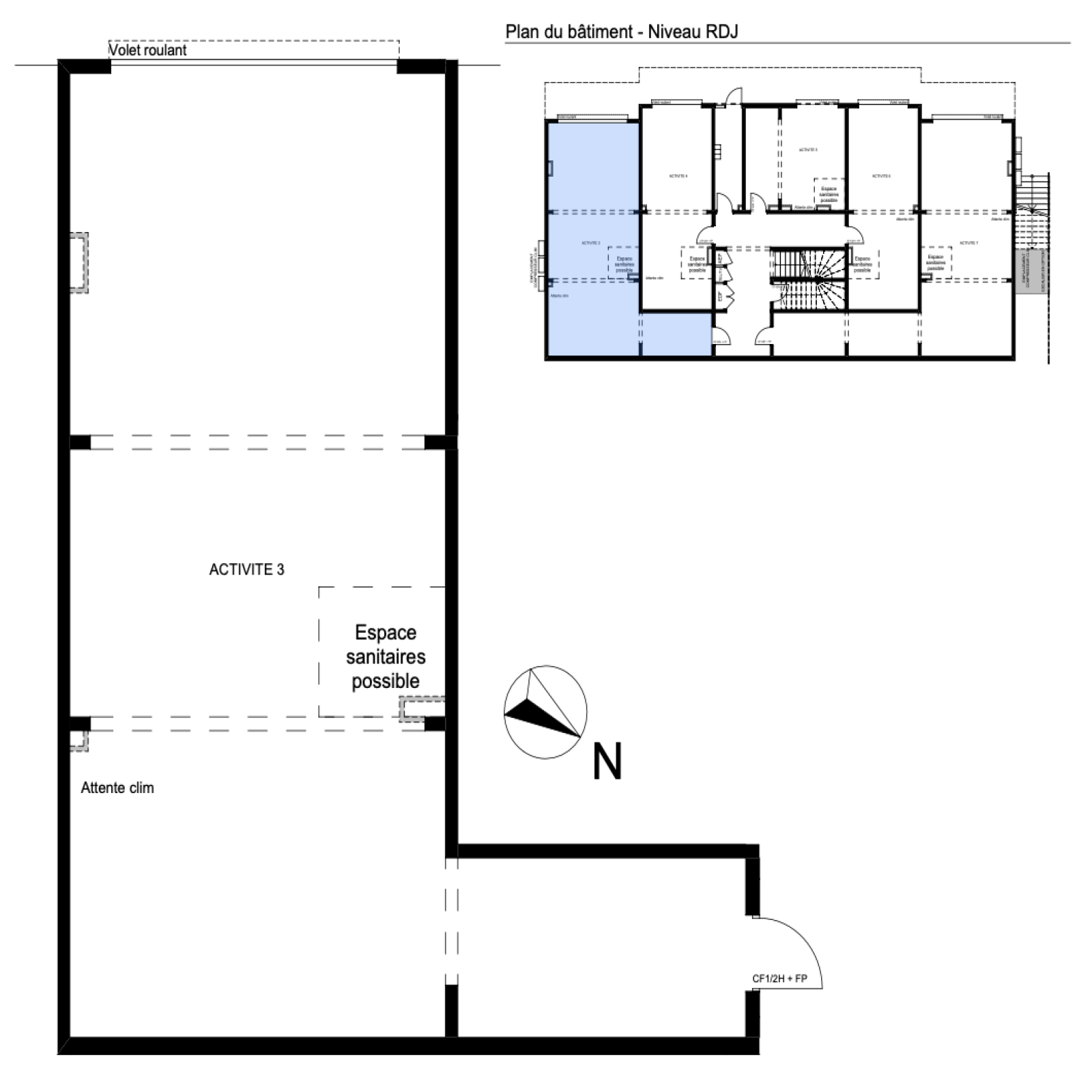
Local commercial 79 m²

1 350 € / mois HT - HC*
Réf 1891-C3

En plein cœur de Saint-Claude, face à la Mairie, nous vous proposons ce local commercial de 79 m² à louer, situé au sein d'une petite résidence à taille humaine composée de 8 logements et 7 commerces.

Le local est livré brut, avec les attentes en eau et électricité, et est sécurisé par un volet roulant. Une belle opportunité pour toute activité commerciale.

Caractéristiques du bien :

  • Surface : 79 m²
  • Local livré brut avec attentes en eau et électricité
  • Fermé par un volet roulant
  • Disponible immédiatement
  • Emplacement idéal en face de la Mairie, au centre de Saint-Claude, proche de l'université
  • Parfait pour installer un commerce de proximité

Ce local bénéficie d'une excellente visibilité grâce à son emplacement stratégique dans un quartier dynamique, ce qui en fait un choix idéal pour un commerce de proximité.

Loyer HT : 1350 euros/mois

Charges locatives HT : 95 euros/mois

Pour plus d'informations ou pour organiser une visite, contactez-nous au 0690 41 99 74.

Bilan énergétique

Diagnostics énergetiques
A propos de ce bien Caractéristiques de ce bien
  • Surface 79 m²
  • construit en 2022

Financier

Informations financières
Loyer HT 1 350 € / mois
Honoraires HT charge locataire 2 170 €
Dont état des lieux Non renseigné
Dépot de garantie 2 700 €
Charges locatives HT (provision donnant lieu à régularisation annuelle) 95 €
Agence ALIAS Immobilier Agence

* HC : Hors Charges

* HT : Hors Taxes